请问穿梭车货架轨道接缝处的间隙留多大?

赵:第一要考虑热胀冷缩,肯定是要有一点儿缝,但是很多地方都用螺栓固定了,热胀冷缩的地方空间并不很大,所以这个缝可以忽略。剩下的因为安装问题,我们在设计过程当中,必须要让金属件的尺寸略微的小些,那么这就和穿梭车允许的偏差相关。
王智育:小于2毫米
赵:嗯,你说的这个是标准吗?还是说你在安装过程当中的客户要求是,因为穿梭式货架,现在设计标准,安装标准应该还没有呢?这一块应该是要询问设备供应设备配合设备商的,你这个两毫米的依据是什么呢?
王智育:一般的设备商,他给出的是这个标准。
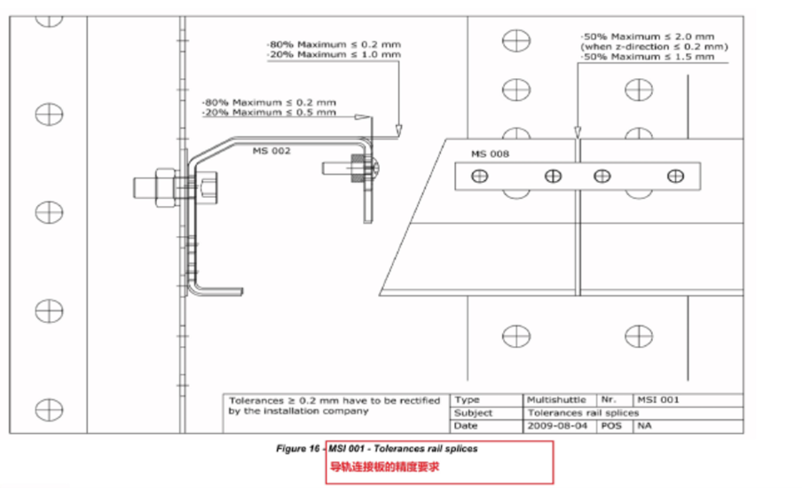
Tyree 雷:安装穿梭式货架时,必须将轨道间距偏差控制在±2mm范围内,导轨接缝小于3mm,导轨接头处高低差小于0.5mm;导轨水平度、直线度整长小于3mm,单位托盘内水平度、直线度小于1mm;左右两侧导轨的平行度小于3mm,单位托盘内的平行度小于1mm。(出厂要求)
张卫国:
1)理论上车轮滚动面是无缝对接,正如高铁要用无缝钢轨;
2)因为穿梭车运行速度高低决定了车轮在这个接缝高低面上产生的冲击,会对车轮的使用寿命产生影响;故速度高的轻型穿梭类货架轨道接缝小于速度低的;载重大的小于载重轻的,这主要是针对安装过程的控制要求;
3)所以这个接缝的预留不是真的留给安装的可方便调节量;
4)那么这个间隙范围的造成:---导轨生产过程中的制造误差,就是端面某个点无间隙了,但是这个正面也存在单边制造误差±0.5mm,考虑到普遍适用性(每个工厂的制造精度不同),所以会适当放宽到±1mm;
5)实际使用中由于货架柱脚的高低调整不绝对水平,包括货架立柱安装孔也有高低差,有货物或无货物搬运过程中存在的轨道及货架结构体之间的变形、移位等也会局部拉大间隙,设计人员也会考虑所有结构件之间的设计预留量,达到所谓的±2mm;
6)实际上在某些缝比较大的安装现场就必须进行接缝端面的倒角处理;以减少可能的端面高差造成的车轮寿命影响。
那个轨道的热胀冷缩影响,我们目前的设计还没有考虑,那个太复杂了,但是多段,拼接长度比较长的,预留缝会比较大,但是安装过程中也是要求尽可能地小。
两向穿梭车精度上不会受多少影响,四向穿梭车会有子轨道与母轨道之间换向切换位的精准度要求,否则会影响搬运效率
周国平:首先要考虑此构件的效用,轨道,伸缩缝必须滿足车轮运行需求,再者通常总长度为30~40米二端与货架固定,可以视作自由端,同时这类道轨均配衬板螺栓连接,而且与道轨连接的其他构件基本上厚度小于道轨的同类材质,只要有1mm~2mm的伸缩缝足够,缝隙大了不利于运行,另外轨道缝隙处的温差相对货架要小,以上沒有以物理数据上作分析仅凭经验,供参考。
罗海:张老师周老师回答专业!我所在公司已做过10多个穿梭库项目,项目运行稳定。我亦做过3年项目管理,在现场蹲过。穿梭货架导轨一般较短,接缝越小越好,一般缝隙大是由于制造误差引起。需要注意穿梭车侧导轮所在接缝位置,尽量控制在0.5以内。
赵明玉:所以从几个老师滴说法上看,标准的制定是当务之急。
虞海:老外给的图我觉得比较人性化,接缝按百分比来。因为制作、安装都有误差。

祝修恒:我补充一句,上面张卫国张工讲到"倒角处理",我以为这是很必要的。
通常情况下,导轨总会有接头,而由于制作误差,切断处的90度多少会有一点偏差,而且由于安装误差,接口两端多少也会有一点高差。所以,轮子行走时或多或少会有咬轮的现象出现。久而久之,一则行走时噪音增大,二则磨损增大。所以,在轨道端头打一个倒角是完全必要的。
其实也不必严格地打1×45度或2×45度,只需拿平锉带一下就可以了。
比如日本的堆垛机天轨,常用方管来做,也都是在端头设计了倒角的。
本站问答文章及图片均来自货架工程技术服优米官网app微信群及相关互联网,技术文献为货架行内专家投稿,货架内参由悠米下载安卓版整理编辑,一切版权均归源作者所有。如果侵犯了你的权益请来信或来电告知我们删除。文中内容仅供参考,不代表本公司观点,转载请注明出处:悠米下载安卓版检测
上一篇: 已经是第一篇了
下一篇: YO米直播足球足协杯
