“平库货架规划设计要点”计划用连续三篇文章,以横梁式货架为例,从地坪承载力与变形、与建筑间距、存储单元、搬运设备、巷道净距、通道净距、地坪表面规整度、存储单元净距、货架防护、安全辅助件、消防安全、环境、结构设计和制造安装等方面,概述平库货架规划设计阶段所需要考虑的因素。
本文平库货架定义为配备人工操作的叉车进行存取操作的货架,以普通横梁式货架为主,还包括穿梭车式、重力式、后推式(即压入式)、驶入式等类型货架。
对于仓库设施,规划者应向客户确认预期使用的地坪或地基的适用性,及其承受货架或搬运设备施加的荷载后的性能特征(比如变形),并确认地坪是否适于地坪锚栓的安装与使用。虽然地基是由土建负责,但货架供应商应提供货架施加在地坪上的荷载信息(集中荷载?均布荷载?布置?)。如果地坪转角(ФFloor)小于下表给出的限值,那么可以认为地坪是刚性基础,在货架设计中无需考虑地坪变形的影响。否则,应在货架结构设计中考虑货架与地坪的相互作用,如下图所示。
规划者应向客户获取有关地坪的以下信息,用于设计货架的柱脚底板和地坪锚栓:
● 是悬空的楼板还是地面承载的地坪;
● 坚实混凝土还是其他类型如空心预制;
● 是否有表面砂浆层、砂浆厚度与等级;
● 结构板厚度、混凝土的质量与等级;
● 建造期间是否使用混凝土添加剂(可能导致柱脚底板与地坪锚栓等金属部分腐蚀);
● 钢筋尺寸及相对于混凝土板表面的位置;
● 所有伸缩缝的位置与构造细节;
● 其他材料(沥青地坪或者带有表面沥青层的混凝土地坪),那么应获取适当的性能数据;当在沥青地坪或者带有表面沥青层的混凝土地坪上进行锚固时应予以特殊考虑;
● 可钻孔位置或禁止钻孔位置。在钻孔作业中,若存在预张或后张钢筋或其他电缆、管道或地坪下电加热器电缆,则会影响人员安全,造成地坪的功能性或结构性损伤。
规划者应向用户获取相关建筑平面图,以确定货架的布局。建筑平面图应考虑货架及其机械搬运设备的位置与绝对尺寸,应清晰标明所有障碍物。为了确定建筑物可用净容积内或建筑物跨内的货架布局,应获取以下建筑平面图的数据:
● 机电设施、柱子、支撑、防火墙、灯光、窗户、门洞、楼板接缝、紧急出口、检修孔等的位置;
● 货架区域的细节:有效长度、宽度和高度,区域内的任何障碍物;
● 现场的入口、出口与物流信息;
● 所有消防设备的类型和位置,消防通道与逃生路径,确保不妥协于货架的规划与操作;
● 建筑结构的公差和变形;地坪公差和变形。
评估有效容积时风、雪或地震荷载下的建筑变形
A 基于国家标准设计风荷载作用下侧面结构的挠度
B 地坪最高点
C 柱子变形
D 考虑立柱变形的柱间净宽
E 地坪最高点与考虑变形的顶棚障碍物最低点之间的净高
F 屋顶挠度
非托盘货物
● 货物的长度、宽度、高度与形状
● 存储单元尺寸公差
● 货物的重量
● 搬运方式
托盘货物
● 单托货物最大重量
● 托盘类型与质量、托盘尺寸公差(实际最小尺寸)与托盘进叉方向
● 存储单元的最大尺寸,考虑货物突出、鼓包或松散
特殊承载容器(箱式托盘、箱桶式容器)
● 承载容器的准确描述
● 承载容器上最大货物重量
● 尺寸
● 公差
危险品货物
● 对于危险品货物,规划者应确定货架设计的附加要求。
主要是叉车,叉车是恰当搬运存储单元的关键,选择时必须紧密考虑以下几点:
● 尺寸型号
● 转弯所需的巷道宽度
● 最大提升高度
● 最大提升能力
叉车最大提升高度宜大于货架最上层高度200mm。
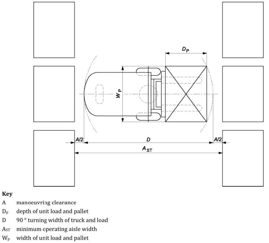
巷道净距
规划者应根据搬运设备(叉车)供应商提供的信息及存储单元信息,确定叉车载货进行90°转弯时所需的最小巷道宽度,如下图所示。
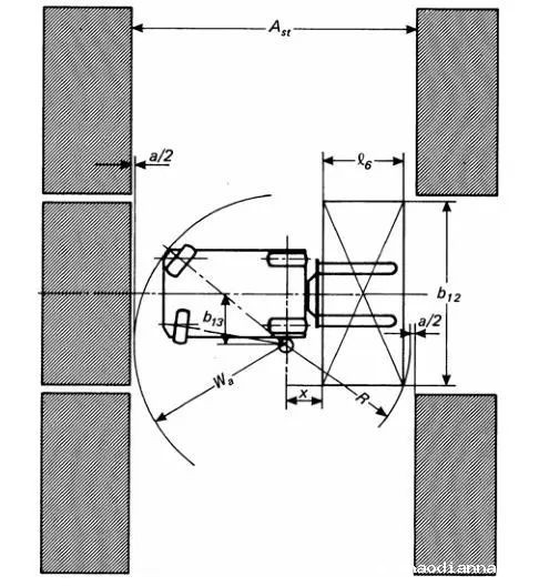
巷道最小宽度计算方法可参照FEM4.005,根据各尺寸即可计算,四轮平衡重叉车示例如下图所示。
通道净距
货架区域外部的叉车通道,人车应尽量分离。当确实无法分离时,叉车一侧至少设置500mm净距,人行通道净空不应小于2.1m。
地坪表面的水平度和直线度会影响货架的安装和搬运设备的运行。平库货架地坪一般为自由通行地坪,其新浇地坪表面的水平高度与设定基准面的偏差不得超过±15mm。如果无法找到原先的基准面,则地坪表面任何一点的水平高度都不应超出平均水平高度±15mm的范围。同时,自由通行地坪的等级不同,其规整度要求亦不同,见下表。
待续。。。
本站的原创文章,请转载时务必注明出处:悠米下载安卓版WESAFE,不尊重原创的行为我们将追究责任。